Bolivar
Surface : 60 m²
Localisation : Paris 19 ème
Coût travaux : 85 000 e






















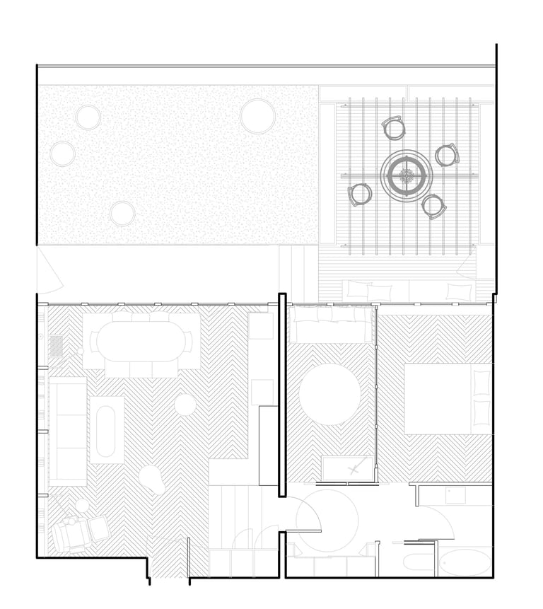
La transformation de cet appartement situé au rez-de-chaussée d'un immeuble parisien lui confère l'allure d'une maison de ville, notamment grâce à son ouverture sur un jardin privatif. Ce jardin a été entièrement repensé pour offrir une atmosphère intime. Deux espaces distincts y ont été aménagés : une zone minérale en prolongement du salon, agrémentée de deux bouleaux et d’un magnolia, et un coin salon d’été, niché entre une haie de bambous et un mur pignon recouvert des jasmins.
L’agencement atypique du lieu, avec 3,6 mètres de hauteur sous plafond dans le salon et un dénivelé de 80 cm séparant la zone nuit, assure une distinction claire entre les espaces de jour et de nuit. Le défi principal de ce projet était la création d’une chambre supplémentaire. Pour ce faire, la cuisine a été déplacée dans le salon. Ses modules, sobres et habillés en cuivre, se fondent dans le volume du salon, apparaissant comme un objet sculptural.
La grande hauteur sous plafond du salon a permis l’installation d’une bibliothèque sur mesure sans encombrer l’espace. L’espace nuit, composé de deux chambres, a été visuellement agrandi grâce à l’ajout d’une verrière réalisée à partir des anciennes menuiseries en bois des fenêtres. Le choix de couleurs, avec des menuiseries en bois rouge vif et un mur bleu clair, apporte une touche de gaieté.
Enfin, la salle de bain a été réorganisée de manière fonctionnelle, incluant une baignoire et des toilettes séparées. Des rangements et un dressing sur mesure ont été intégrés dans le couloir pour maximiser l’espace disponible dans les chambres.






