Montmartre
Surface : 80 m²
Localisation : Paris 18 ème
Coût travaux : 100 000 e
















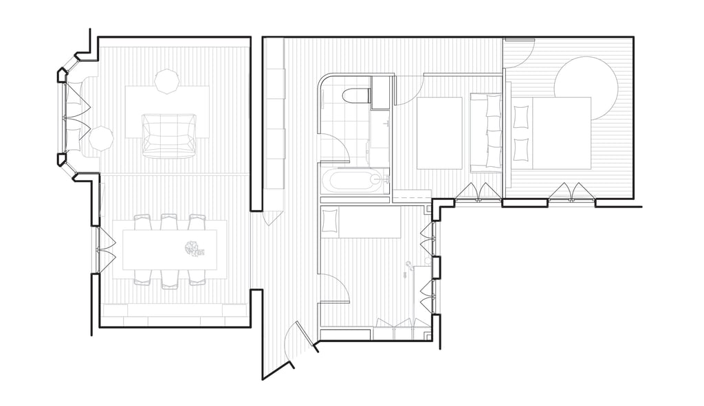
Cet appartement de 80 m², situé dans un immeuble des années 1930 à Montmartre, a bénéficié d'une rénovation complète pour retrouver son charme d'antan et accueillir une famille de quatre personnes.
Pour que chaque membre dispose de son propre espace, une chambre supplémentaire a été aménagée, nécessitant la création de nouvelles cloisons ainsi que le déplacement des toilettes et de la cuisine. Cette transformation a été rendue possible grâce à l'installation d'un système de chauffage électrique plus performant et à la remise à neuf du réseau électrique.
Le salon, avec son bow-window, constitue l'élément central de l’espace de vie. Pour le mettre en valeur, une banquette sur mesure a été installée. La cheminée a été reconstruite à son emplacement d’origine et s’intègre désormais comme pièce maîtresse de la bibliothèque. La cuisine, désormais ouverte sur le salon, reprend les lignes et les matériaux de la bibliothèque, avec un plan de travail en granit et des façades vert forêt, créant une atmosphère à la fois chaleureuse et élégante.




















